t o i l e d e f o n d
emplacement into historic context requires critical assesment











Miami Beach, FL
year: 2020
conceptualization, design, rendering, rendering post-production, modeling, drafting, historic research, zoning research, board approval set
year: 2020
conceptualization, design, rendering, rendering post-production, modeling, drafting, historic research, zoning research, board approval set
What does this site require?
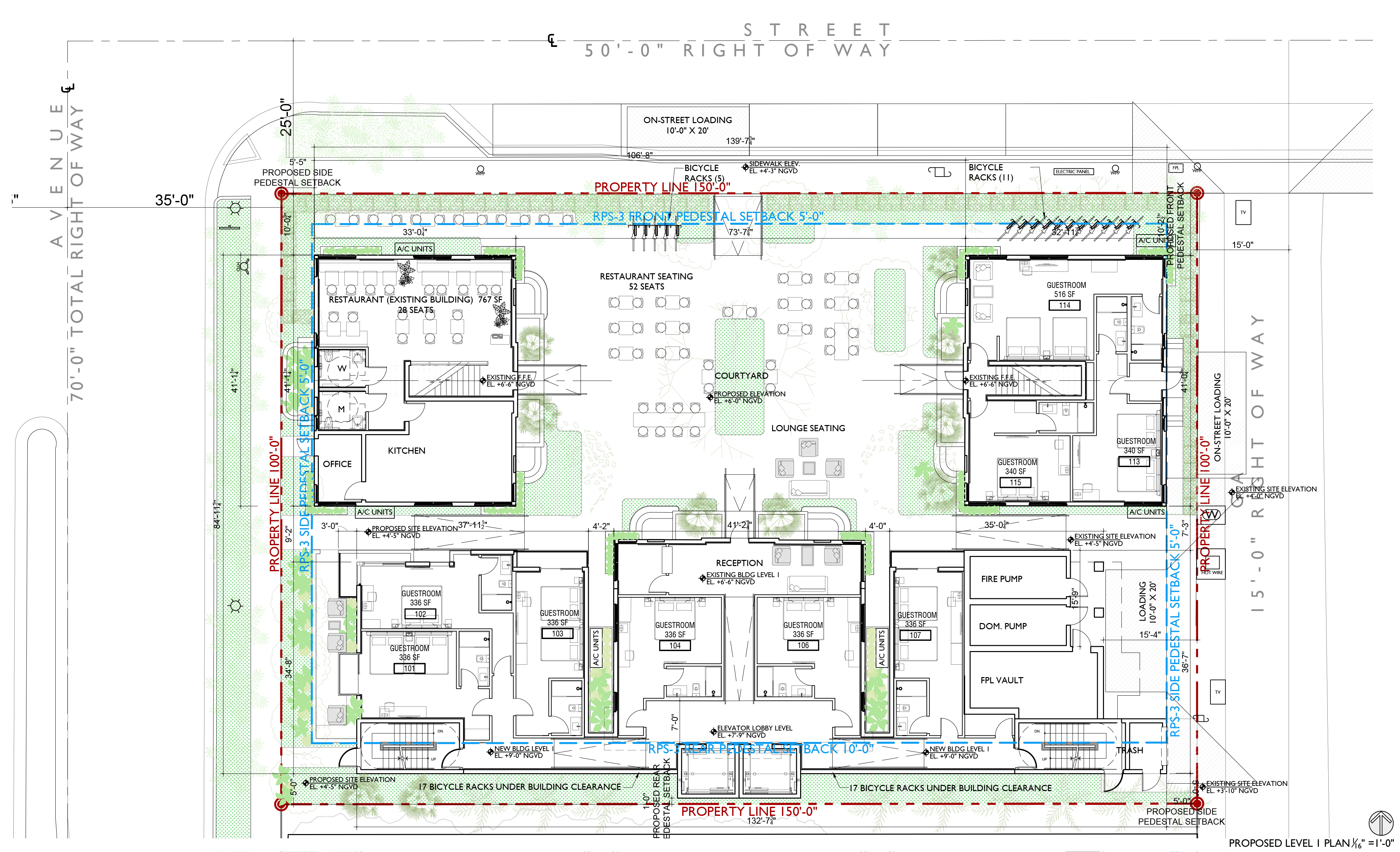
The author of the Essex House and Park hotels and other Miami Beach historic buildings, designed three identical two-level residential structures sharing a courtyard in the Flamingo area of Miami Beach. Built around 1938, the structures are one of Henry Hohauser’s first projects in South Beach since his arrival during the construction boom in 1932.
The building was designed during a time of scarcity due to post-war economic depression, which is evidenced by the lack of architectural impact and minimal openings. The valuable aspect to be abstracted from the frugal original design is the central courtyard, which grants its micro-community spontaneous gathering and sense of belonging, as oberved during site visits. This small plaza remains in the proposed solution.
What the site requires is a discussion, a critique on local preservation, on how a building can be rated for preservation while being critical of the socioeconomical conditions that framed its conception. The site beckons a critique on surrounding garage-heavy buildings with no architectural aim, and on how we should be placing importance on how to make history now with the buildings we erect.
The intervention proposes allowing two of the original houses to remain, repurposing them as restaurant and guestrooms, and removing the central original building while rebuilding its original facade as entrance to a contemporary but properly scaled building, which engages the twin historic-designated structures with the same symmetry that its predecessor faithfully followed. The result is a necessary tension that places new construction side to side with what is designated as valuable history.
The author of the Essex House and Park hotels and other Miami Beach historic buildings, designed three identical two-level residential structures sharing a courtyard in the Flamingo area of Miami Beach. Built around 1938, the structures are one of Henry Hohauser’s first projects in South Beach since his arrival during the construction boom in 1932.
The building was designed during a time of scarcity due to post-war economic depression, which is evidenced by the lack of architectural impact and minimal openings. The valuable aspect to be abstracted from the frugal original design is the central courtyard, which grants its micro-community spontaneous gathering and sense of belonging, as oberved during site visits. This small plaza remains in the proposed solution.
What the site requires is a discussion, a critique on local preservation, on how a building can be rated for preservation while being critical of the socioeconomical conditions that framed its conception. The site beckons a critique on surrounding garage-heavy buildings with no architectural aim, and on how we should be placing importance on how to make history now with the buildings we erect.
The intervention proposes allowing two of the original houses to remain, repurposing them as restaurant and guestrooms, and removing the central original building while rebuilding its original facade as entrance to a contemporary but properly scaled building, which engages the twin historic-designated structures with the same symmetry that its predecessor faithfully followed. The result is a necessary tension that places new construction side to side with what is designated as valuable history.