c o l l e c t i v e
shadows are light’s playground















Miami Beach, FL
year: 2017
collage conceptualization, design, rendering post-production, modeling, drafting, historic research, zoning research, board approval set
year: 2017
collage conceptualization, design, rendering post-production, modeling, drafting, historic research, zoning research, board approval set
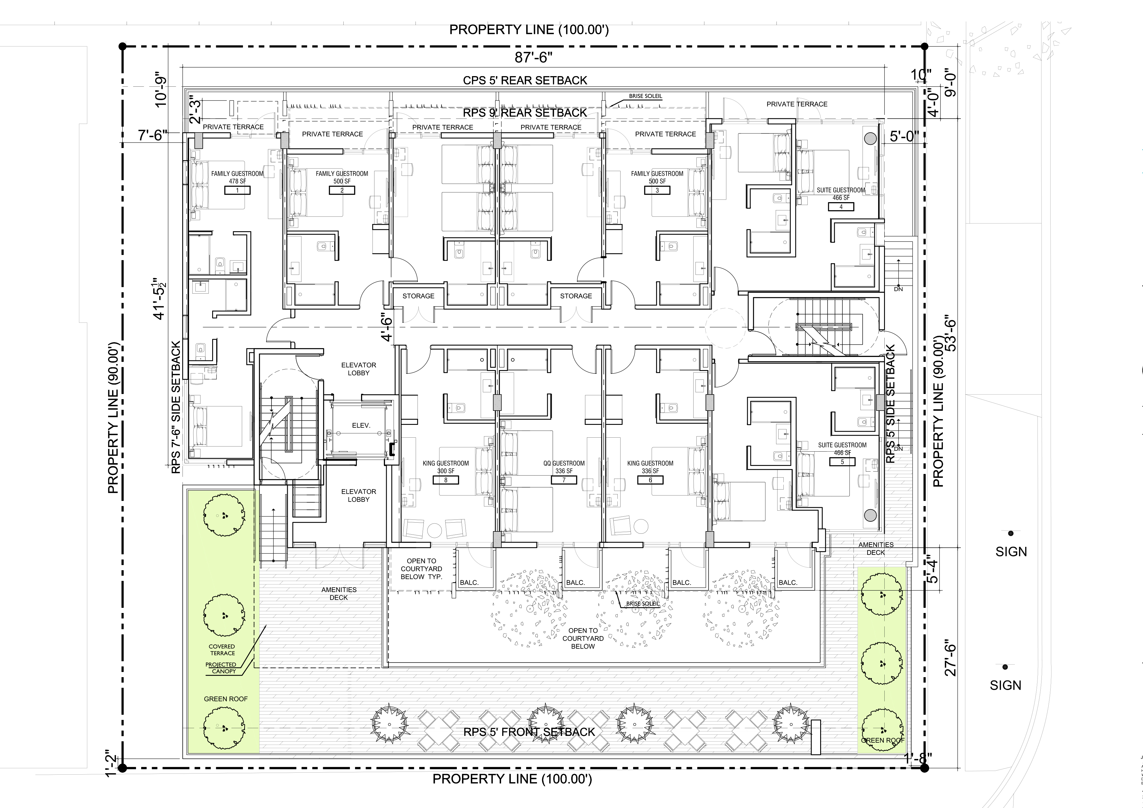
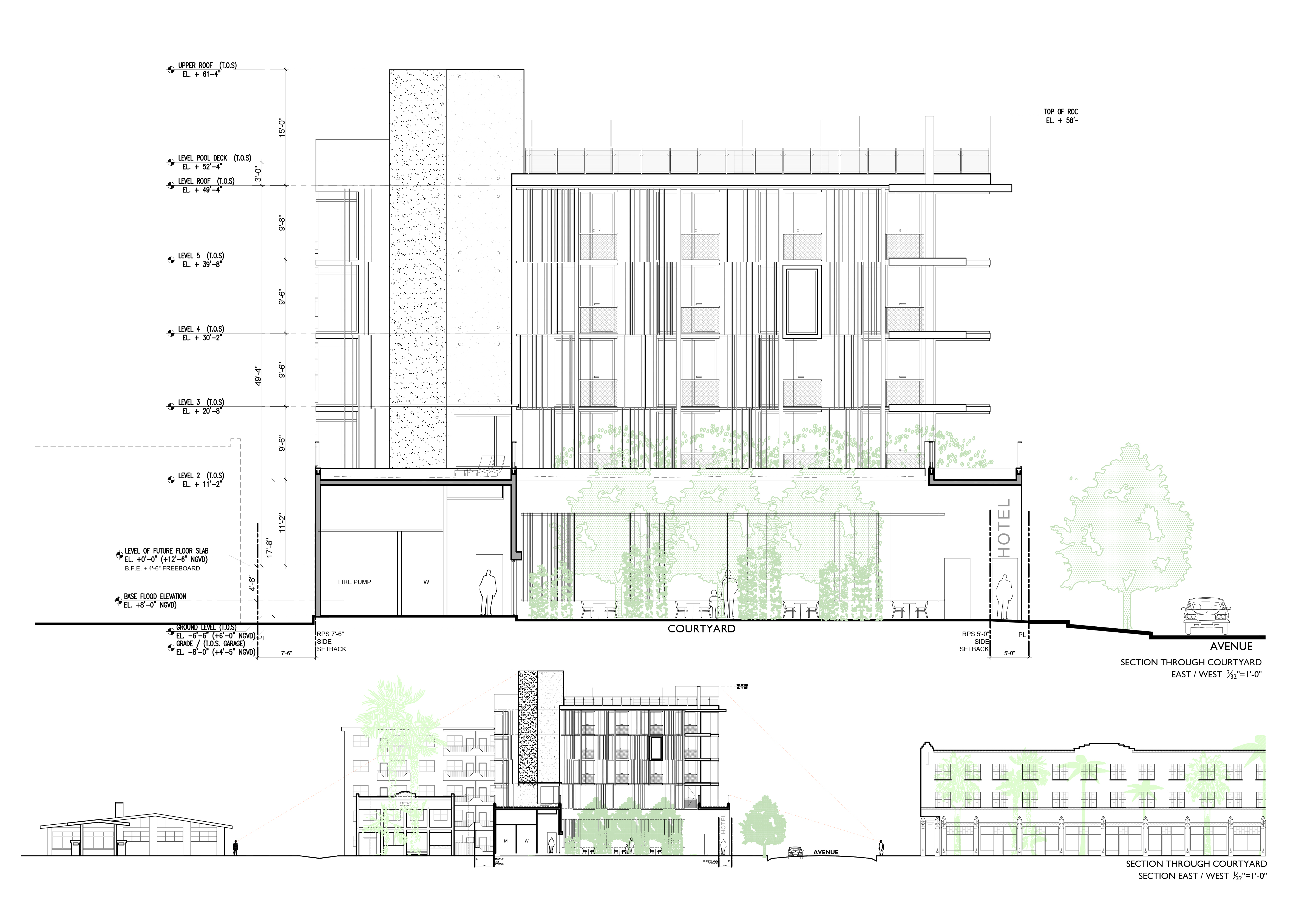
This building was achieved by working closely with the city’s Historic Preservation Board, ensuring its contributing role in the activation of a vital roadway to Miami Beach. The building’s courtyard was originally
conceived to be open to the sky and to the street to allow natural light and the uninterrupted integration of the street.
In collaboration with: Iuliia Fomina
In collaboration with: Iuliia Fomina